5 locali in vendita

Vicenza, Via N. Sauro - Centro Vicenza
€ 495.000
4 locali 4 locali
200 Mq 200 Mq
2 bagni 2 bagni

5 locali in vendita

Vicenza, Via N. Sauro - Centro Vicenza

Descrizione annuncio

CENTRO - Via Nazario Sauro si trova in una delle zone più ricercate del centro di Vicenza, in un contesto residenziale tranquillo e di grande fascino urbano, arricchito dalla presenza di due ville storiche in stile Liberty dotate di grandi parchi piantumati che rendono il contesto verdeggiante e suggestivo.

La via è comodamente accessibile in auto, non essendo soggetta a ZTL, un valore aggiunto raro per una posizione così centrale. La sua vera forza strategica risiede però nella duplice vocazione: da un lato consente di raggiungere agevolmente i principali servizi e poli del quartiere retrostante, come università, ospedale, tribunale e scuole di ogni ordine, incluse materna e infanzia, situate a pochi passi; dall’altro permette di accedere al centro storico della città semplicemente attraversando un suggestivo ponticello pedonale, trovandosi così immediatamente nel cuore di Vicenza.

L’appartamento è situato al terzo piano di una palazzina elegante composta da sole tre unità abitative, disposte una per piano, a garanzia di privacy, tranquillità e contenute spese condominiali. L’immobile è stato ristrutturato all’inizio degli anni 2000 e si presenta in buono stato di manutenzione, con pavimentazione in parquet che conferisce calore ed eleganza agli ambienti. Per questo motivo, può essere abitato fin da subito.

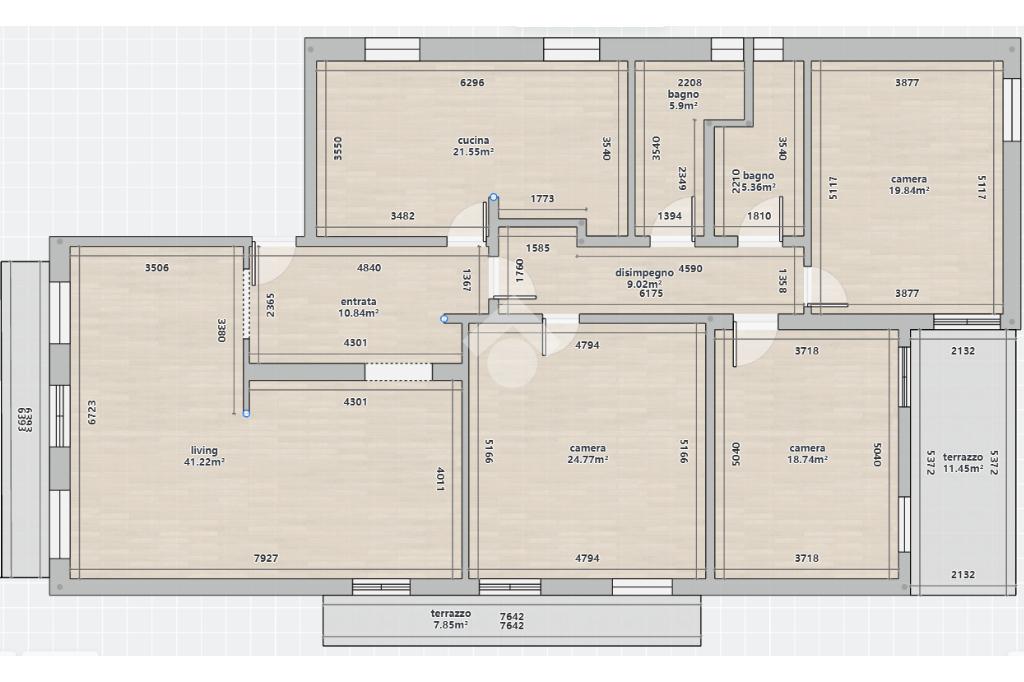
Gli spazi interni sono ampi e ben distribuiti: la zona living supera i 40 mq, offrendo un ambiente luminoso e accogliente, affiancata da una cucina abitabile separata. La zona notte comprende tre camere da letto di generose dimensioni e due bagni finestrati, garantendo comfort e funzionalità. L’esposizione su quattro lati assicura abbondante luce naturale e un ottimo ricambio d’aria in tutti gli ambienti. Fiore all’occhiello della proprietà sono i tre terrazzi, tutti affacciati sul verde, che regalano piacevoli spazi esterni vivibili e una vista rilassante.

Completano la dotazione una soffitta al quarto piano, una taverna piccola e graziosa con camino e un comodo garage al piano terra. Per gli ospiti è inoltre garantito un posto auto privato nel cortile condominiale.

Questa proposta rappresenta una soluzione abitativa di grande valore, perfetta per chi è alla ricerca di un appartamento elegante, spazioso e immerso in un contesto esclusivo, a due passi dal cuore storico di Vicenza. Un immobile che unisce posizione prestigiosa, comodità di accesso, comfort, riservatezza e qualità, ideale come abitazione principale e come investimento di pregio.

Mostra tutto

Nelle vicinanze

Trasporto pubblico Trasporto pubblico
stazione di Vicenza
stazione di Vicenza
1,2 Km
Anconetta
Anconetta
2,4 Km
Contra' San Pietro
Contra' San Pietro
110 m
Viale Margherita
Viale Margherita
140 m
Ricariche auto elettriche Ricariche auto elettriche
Lampionet Matteotti
260 m
Zushi Japanese Restaurant
690 m
Park Fogazzaro
1,0 Km
Lampionet Verdi
1,1 Km
Parcheggio Stazione di Vicenza | EnelX
1,2 Km
Scuole Scuole
Scuole
120 m
Scuola elementare G. Zanella
330 m
Vittorino da Feltre - Scuola primaria
380 m
Istituto Omnicomprensivo Gian Antonio Farina
380 m
Istituto Scolastico G.A. Farina
410 m
Farmacia Farmacia
Farmacia Corso Padova
340 m
Farmacia
340 m
Farmacia Valeri
440 m
Farmacia Al Redentor
480 m
Farmacia Dott. Doria
530 m
Ospedali Ospedali
Casa di Cura privata Villa Berica
550 m
Casa di Cura privata Eretenia
680 m
Pre-Triage
1,0 Km
ingresso Palazzina Uffici dell'Ospedale
1,0 Km
Ospedale Civile di Vicenza "San Bortolo"
1,1 Km
Supermercati Supermercati
Bibe Market
230 m
Interspar
740 m
Silene
760 m
Eurospar
990 m
D Più
1,2 Km
Negozi Negozi
I buoni sapori di Adelino
270 m
Salumeria Raffello Simone
300 m
Alimentari Toniolo
310 m
Gastronomia Plai Natal
440 m
Il Salumiere
470 m
Bar Bar
Nuovo Bar Astra
230 m
Bar Antica Porta
240 m
Bar
260 m
Matteotti
270 m
Pasticceria Gambarato
280 m
Ristoranti Ristoranti
Ristoranti
60 m
Vecchio Borgo
240 m
Julien
270 m
Ristorante Indiano Buddha
290 m
Pizzeria Vesuvio
340 m
Mostra tutto

Caratteristiche

Rif.:
61163438
Piano:
3 di 3 (ultimo Piano)
Box:
1
Posti auto:
1
Terrazzi:
3
Camere da letto:
3
Mostra tutto
Prezzo Prezzo
€ 495.000
Rata mutuo Rata mutuo
€ 2.313 / mese
Spese annue Spese annue
€ 150
Proponi il tuo prezzoProponi il tuo prezzo

Classe Energetica

E
E
E
E
E
E
E
E
E
EP globale non rinnovabile:
114.66 kW h/m² anno
EP globale rinnovabile:
22.67 kW h/m² anno
EP invernale del fabbricato:
EP estiva del fabbricato:
Anno di costruzione:
1967
Riscaldamento:
Autonomo
Tipo impianto:
A radiatori
Tipo alimentazione:
Metano

Ti interessa visionare l'immobile?

Fissa un appuntamento  Fissa un appuntamento

Richiedi informazioni

Clicca su Leggi per aprire l'informativa
* Questi campi sono obbligatori

Calcola il tuo mutuo

Semplice e senza impegno
Anticipo

( % )
Mutuo

( % )

pochi semplici passi

inserisci i tuoi dati
Questionario completato
Grazie per aver richiesto un appuntamento senza impegno con un nostro Consulente del Credito e Assicurativo.

Hai inserito correttamente tutti i dati necessari e a breve riceverai una e-mail con un link da convalidare per inviare i tuoi dati.
Affiliato
Studio Menti Srl
Corso Padova, 90 36100 Vicenza (VI)

Il nostro staff


  • Nicole Cecchetto
    Coordinatrice

  • Giuseppe Chiaradia
    Collaboratore

  • Denis Andrei Pastravanu
    Collaboratore

  • Luca Petrucci
    Affiliato

  • Rahul Sharma
    Collaboratore

  • Giulia Teodora Sandu
    Coordinatrice
Corso Padova, 90 36100 Vicenza (VI)
Zona: Vicenza Stadio-San Pio X-Casale-Riviera Berica-Borgo Berga
Mostra su mappa
Orari: LUNEDI - VENERDI: 08:30 - 13:00 / 14:30 - 20:00 SABATO: 08:30 - 13:00
Affiliato
Studio Menti Srl
Corso Padova, 90 36100 Vicenza (VI)

2026 Tecnocasa Franchising S.p.A. - P. IVA 08365160152 - Via Monte Bianco 60/A 20089 Rozzano (MI). Ogni agenzia ha un proprio titolare ed è autonoma. Privacy policy | Policy utilizzo | Cookie policy